Adaptability
家族の価値観に合わせた
4つの柔軟性
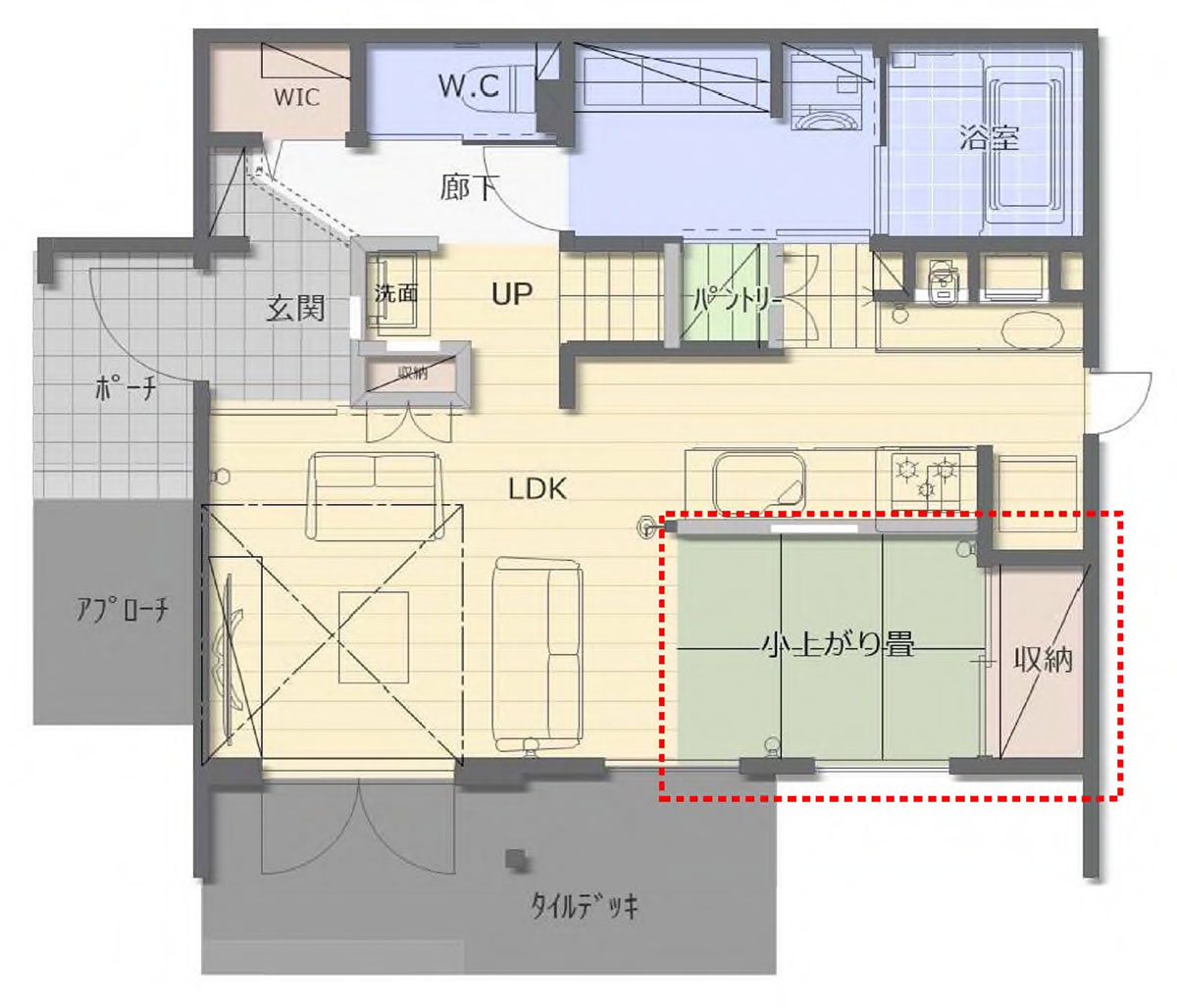
食事をする場所であり、横になって休む場所にもなる。畳は、部屋を増やすのではなく、暮らしの使い方を広げるための工夫です。
リビングソファーと畳のくつろぎの時間。その両方を自然につなぐことで、日々の過ごし方にいごこちの余白が生まれます。
面積は増やさず、けれど家族の暮らしの幅が広がる。それも、SaiCLEが考える「柔軟性」のひとつです。



約3.5畳の広さがあるため、1階での就寝も可能です。引違いの収納にすることで将来布団、座卓を収納できます。これにより1階のフレキシブル性が高まります。
2階はフレキシブルなスケルトンインフィルを採用しています。階段の位置が変わらなければ、周辺環境、家族構成、ライフスタイルに合わせて自由に間仕切りをすることができます。間取り計画をお楽しみください。また、お子さまの成長や暮らし方の変化に合わせて、間仕切りの追加・撤去が可能です。
※耐震構造の壁2箇所、柱2本のみ固定となります。

寝室/子供室×2+収納/廊下オープンクローゼット/畳コーナー/ワークスペース/ファミリークロゼット/W.C/吹抜

寝室+WIC/子供室+クローゼット/小上がり畳 + 収納/趣味室 + 収納/W.C/吹抜

寝室/子供室×3/ワークスペース+収納/ファミリークローゼット/廊下収納/W.C

室/子供室×2/ワークスペース/納戸兼用テレワーク室/ファミリークローゼット/W.C/吹抜
※子供室の破線は間仕切りを示しています。

1階のダイニングは“畳”に変更が可能です
※部屋を追加することが可能です。詳しくは部屋をプラスするをご覧ください。
『SaiCLE』は、100年保つ耐久性を考慮した住宅です。
土地の選定において、“生活基盤(買い物、医療、学校(通学))が将来も安心して受けられること” 、“不動産価値として資産を残せること” の考慮は大切ではないでしょうか。
このアプローチに対して、本物の高性能を規格化することにより、建築コストダウンを図りました。限られた資金をより土地購入費用に充てることができます。家を含めた包括的な資産形成が『SaiCLE』の目的の一つなのです。
『SaiCLE』は、広い土地を必要としません。45坪ほどの土地でも、自転車置き場、物置スペース、庭に加えて車4台の駐車が確保できることを念頭に開発しました。
今回の配置シミレーションは、実際に土地情報サイトで掲載されている分譲地を参考に作成しています。全く同じではありませんが、間口、奥行きは切よく寸法で合わせている以外、現実的な大きさと考えます。
全部で4つ作成してみましたので、1つずつ挙げていきます。
補足
[ 配置① ]
南道路の土地 151.98㎡ (45.88坪)
お子様が小さい内は、南の一角にお庭を作って遊ぶスペースに。将来は4台車が停められるフレキブルな南の活用方法です。北西の位置に通勤、通学用の自転車置き場と物置を設置できます。また、土地に無駄がないため草刈りの手間がほとんど掛かりません。
以上になります。45坪台の敷地でも『SaiCLE』と外構が無理なく整えることが可能です。
また、気になる土地をみつけてもサイズ感はなかなか掴みづらいためしっかりと配置シミュレーションいたします。
基本の28坪プランに譲れないライフスタイルをプラスすることが可能です。規格住宅でありながらフレキシブル性を持たせているため、”少し広くして〇〇部屋が欲しい” のご希望にお応えいたします。
面積を抑えてプラスできるため、コストも抑えられます。ちょっとした “足し算”が趣味も収納も叶う暮らし方のご提案です。



「和室3.5畳」と「外物置1畳」をプラス
和室は、子供遊び場、ゲストルーム、ヌック、将来的な寝室など様々な利用ができます。外物置は、下屋にあるため雨に濡れることがありません。タイヤ、DIY工具、アウトドア用品、家庭菜園用具、ゴミ置きなど室内に持ち込みたくない物の収納に便利です。


子供遊び場、ゲストルーム、ヌック、将来的な寝室に。

「土間3.5畳」と「外物置1畳」をプラス
土間スペースは、趣味の自転車やアウトドア用品などの保管やメンテナンススペースに最適です。


趣味の自転車やアウトドア用品などの保管やメンテナンススペースに。


玄関ポーチの上に籠れる「書斎・趣味室」をプラス。


「バルコニー」をプラスすることで、外で洗濯物や布団をを干すことができます。